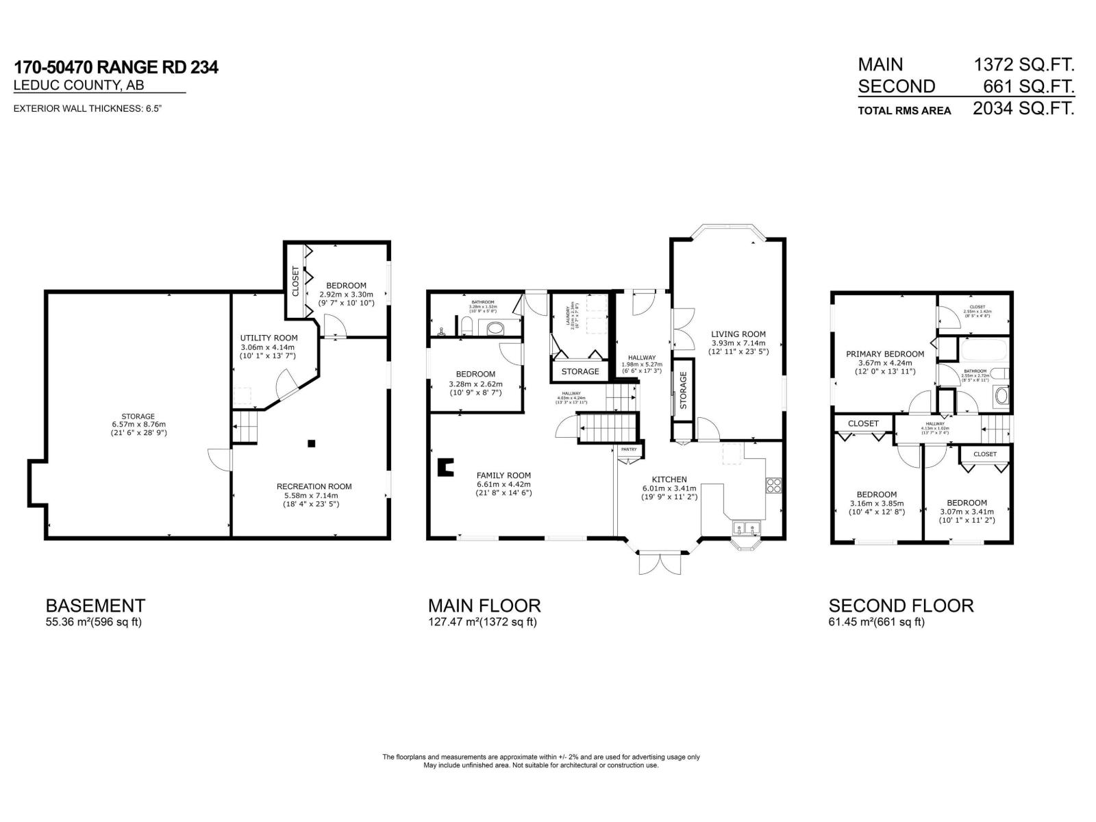
BEYOND PARADISE, that's the only way to describe this fabulous, fully developed 3.26 ACRE OASIS featuring 2 PONDS, a WATERFALL, multiple gathering areas, PERENNIAL GARDENS in this PAVED, FENCED, & BEAUTIFULLY LANDSCAPED property complete with a 35' by 60' SHOP with 12' OVERHEAD DOORS & a lovely 4 LEVEL SPLIT! WOW! Pride of ownership abounds in this wonderful family home with a 7 GPM DRILLED WELL & UPGRADES including Hi Efficiency EUROLINE WINDOWS, FURNACE 2012, HWT 2024, MAINTENANCE FREE DECK 2015, SHINGLES 2019 House & Shop, plus a new TANK & FIELD SYSTEM installed in 2019. The home offers a large foyer, a lovely FORMAL LIVING/DINING ROOM with FRENCH DOORS & HARDWOOD. Sunny OAK KITCHEN with UPGRADED APPLIANCES, a generous nook area overlooking the 3rd. level with hardwood & a HIGH EFFICIENCTY WOODBURNING FIREPLACE. There is a 3 pc. bath, laundry & den/bedroom plus access to the oversized attached garage. Up to 2 bedrooms & 3 pc. bath. Basement is developed, plus crawl space storage & furnace room. WOW! (id:59123)
Active





