77 Elliott Wd$ 549,900 | South Pointe | Fort Saskatchewan

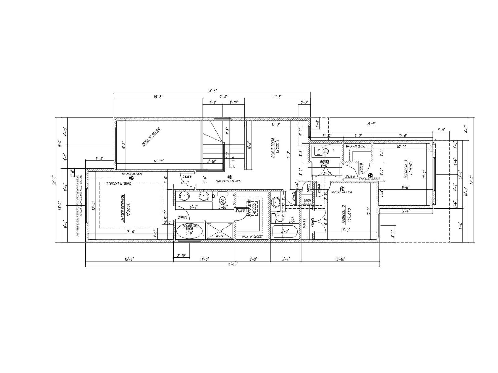
Pre-Sale opportunity in Southpointe! The interior of this home can be customized to your liking. This 1846 sqft house features a main floor den with a half bath, walk-through pantry into the kitchen and dining room with an open to above living room with an MDF fireplace feature wall that is sure to impress. On the second floor you have a primary bedroom with an indented ceiling that has a 5-piece en-suite bathroom and walk-in closet. 2 additional bedrooms with another full bathroom. The upper floor is finished off by a laundry room and bonus room. Exterior picture is a rendering and the photos are of a different home. House is still under construction. (id:59123)

Listing Details

Property Details

Full Address:
77 Elliott WD, Fort Saskatchewan, Alberta
Price:
$ 549,900
MLS Number:
E4484714
List Date:
April 29th, 2026
Neighbourhood:
South Pointe
Lot Size:
315.22 ac
Year Built:
2026

Interior Features

Bedrooms:
3
Bathrooms:
3
Appliances:
Washer, Refrigerator, Dishwasher, Stove, Dryer, Microwave, Hood Fan
Heating:
Forced air
Fireplaces:
1
Fireplace Type:
Insert, Electric
Basement:
Unfinished, Full

Building Features

Storeys:
2
Garage:
Attached Garage
Ownership Type:
Freehold

Floors

Finished Area:
1847 sq.ft.

Land

Lot Size:
315.22 ac

Neighbourhood Features

Ratings

Commercial Info

Location

Neighbourhood Details

Loading Neighbourhood Information...

Mortgage Calculator

powered by Ratehub.ca

Sign Up To Save Your Favourites

Keep track of your favourite Edmonton listings by signing up to Your YEG. Enter your information below to begin.

Name(Required)
Password(Required)
Strength indicator

Quick Links

Navigate the Edmonton real estate market with a team that supports you every step of the way. View our resources and more below.

Meet Our Team

Resources

Buyers Services